Stilvolle Eigentumswohnung – sonniger Südbalkon & Garten laden zum Entspannen ein
21029 Hamburg, Dachgeschosswohnung zum Kauf
Kontaktdaten
-
NameFrau Verena Busch
-
FirmaHamburg Finanz Immobilien LA GmbH & Co. KG
-
AdresseZollstraße 3
21465 Wentorf bei Hamburg -
E-Mail Direkt
-
Tel. Zentrale
Objektdaten
-
Objekt ID129009640#lMEyW
-
ObjekttypenDachgeschosswohnung, Wohnung
-
Adresse21029 Hamburg
-
LageOrtslage
-
Etage2
-
Etagen im Haus1
-
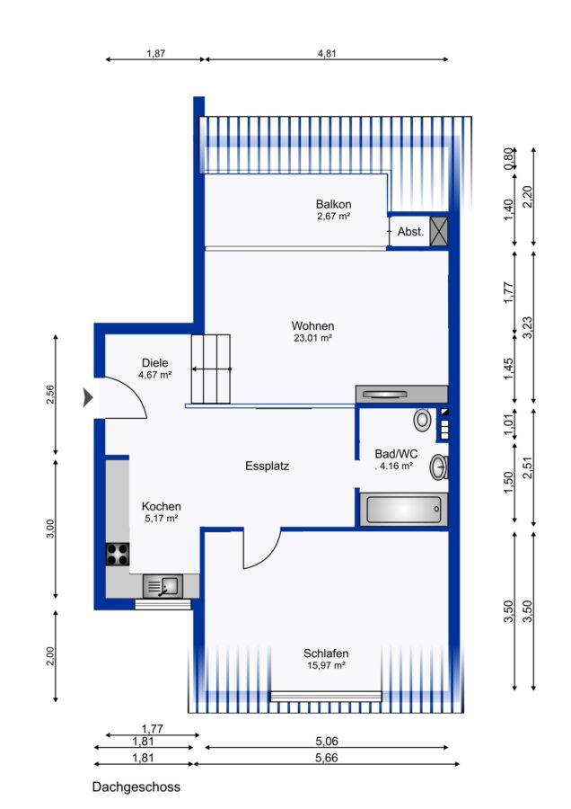
Wohnfläche ca.56 m²
-
Zimmer2
-
Schlafzimmer1
-
Badezimmer1
-
Balkone1
-
Wesentlicher EnergieträgerGas
-
Baujahr1973
-
Letzte Modernisierung2019
-
Zustandgepflegt
-
Verfügbar abab sofort
-
Stellplatz1 Stellplatz
-
Hausgeld340,17 EUR
-
ProvisionspflichtigJa
-
Käuferprovision2,60 %
Die Käufer-Courtage beträgt 2,60% des Kaufpreises inklusive der gesetzlichen Mehrwertsteuer und ist mit der Unterzeichnung eines notariellen Kaufvertrages der Interessenten von der HAMBURG FINANZ® Immobilien LA GmbH & Co. KG verdient und fällig. Wir haben mit dem Verkäufer einen provisionspflichtigen Maklervertrag in gleicher Höhe abgeschlossen. -
Kaufpreis298.000 EUR
Ausstattung / Merkmale
- Badewanne
- Balkon
- Einbauküche
- Gartennutzung
- Tiefgarage
Energieausweis
-
EnergieausweistypBedarfsausweis
-
Ausstellungsdatum15.11.2017
-
Gültig bis14.11.2027
-
GebäudeartWohngebäude
-
Baujahr lt. Energieausweis1973
-
PrimärenergieträgerGas
-
Endenergiebedarf128,30 kWh/(m²·a)
-
EnergieeffizienzklasseD
Objektbeschreibung
Beschreibung
Das Mehrfamilienhaus wurde 1978 in massiver Bauweise erbaut. Die schöne Dachgeschoss-Wohnung ist hochwertig und modern. Der dazugehörige Balkon mit Blick ins Grüne lädt zum Verweilen ein.
Über das Treppenhaus gelangen Sie zu Ihrer Wohnung, die sich im 2. OG befindet.
Hier stehen Ihnen helle und modern gestaltete 56 m² Wohnfläche zur Verfügung, welche sich auf 2 Zimmer aufteilen. Bodentiefe Fenster bzw. Balkontür lassen viel Licht in den Wohn-/Essbereich, wodurch auch an grauen Tagen die Wohnung hell erstrahlt.
Von dem Mittelpunkt der Wohnung, dem Essbereich, geht das Schlafzimmer ab und auch das Badezimmer.
Über drei, offene Treppenstufen gelangen Sie in den Wohnbereich und von dort aus auf den Südbalkon.
In der Tiefgarage befinden sich Stellplätze für die WEG ohne genaue Zuordnung.
Gut durchdachte Details machen diese Wohnung besonders. Die modern gestaltete Küche findet sich in den gleichen Fronten des Einbauschranks wieder. Auch der Einbauschrank im Schlafzimmer sorgt für den bestmöglich genutzten Stauraum.
Überzeugen Sie sich von dieser schönen Eigentumswohnung!
Ausstattung
Zusätzlich gehört zu der Wohnung ein Tiefgaragen-Stellplatz (Nutzung für ein Fahrradkeller sowie ein Gemeinschaftsgarten.
Folgendes erwartet Sie ebenfalls in dieser modernen Eigentumswohnung:
- separater, gemeinschaftlicher Waschraum
- elektrische Markise für den Balkon
- Spitzboden als Abstellfläche
- Abstellraum neben dem Balkon
- ein hochwertiges Wannenbad und ein Waschmaschinenanschluss
- Südbalkon mit Blick ins Grüne, in den Gemeinschaftsgarten
Modernisierungen in 2019:
- modernes Wannenbad mit Waschmaschinenanschluss
- eine Einbauküche mit Backofen, Kühl-/ Gefrier- Kombination in 2019
- Einbauschrank im Essbereich mit gleichen Fronten wie die Küche
- 3-fach verglaste Kunststofffenster in weiß
- Elektrik und Wasserleitungen
Sonstige Informationen
Alle Angaben sind ohne Gewähr und basieren ausschließlich auf den Angaben und Informationen, die uns von unserem Auftraggeber zur Verfügung gestellt wurden. Wir übernehmen keine Gewähr für die Vollständigkeit, Richtigkeit und Aktualität dieser Angaben. Änderungen vorbehalten.
Der Kaufinteressent erklärt, für eigene Rechnungen, das heißt nur für sich selbst und ohne fremden Auftrag zu handeln. Zur Erfüllung
der Verpflichtungen aus dem Geldwäschegesetz ist der Makler verpflichtet, die Identität der Vertragspartner zu überprüfen und zu dokumentieren. Bei Minderjährigen muss auch die Identität der Erziehungsberechtigten überprüft werden.
Lage
Die Eigentumswohnung befindet sich in zentraler Lage von Hamburg-Bergedorf, einem Stadtteil, der durch zahlreiche Grün- und Ackerflächen seinen ländlich geprägten Charme bewahrt hat. Gleichzeitig profitieren Sie hier von einer sehr guten Infrastruktur: Einkaufsmöglichkeiten, Ärzte, Apotheken, Kindergärten sowie sämtliche Schulformen sind bequem erreichbar. So verbindet Bergedorf die Vorzüge des grünen Wohnens mit urbaner Vielfalt.
Mikrolage
- Supermärkte, Restaurants, Spielplätze, Kita und Schulen in unmittelbarer Nähe
- Fußballplatz und weitere Freizeitmöglichkeiten im direkten Umfeld
Makrolage
- nächste S - Bahn - Station Bergedorf 2 km
- Geesthacht 16 km
- Hamburger Innenstadt 18 km
- Flughafen HAM 24 km
- A25 in 2 km
- A1 in 23 km
- A7 in 38 km
Die ungefähre Position der Immobilie auf Google Maps ansehen (Link auf externe Website)





