Lichtdurchflutetes Reiheneckhaus nach KfW-40-Standard mit Dachterrasse und Stellplatz
22043 Hamburg, Reiheneckhaus zum Kauf
Videos
Kontaktdaten
-
NameFrau Anke Ridder
-
FirmaHamburg Finanz Immobilien LA GmbH & Co KG
-
AdresseEchardusstieg 6
21465 Wentorf bei Hamburg -
E-Mail Direkt
-
Tel. Zentrale
Objektdaten
-
Objekt ID129009650#lMEyW
-
ObjekttypenHaus, Reiheneckhaus
-
Adresse22043 Hamburg
-
LageWohngebiet
-
Etagen im Haus3
-
Wohnfläche ca.122,60 m²
-
Grundstück ca.189 m²
-
Zimmer5
-
Schlafzimmer4
-
Badezimmer2
-
Separate WC1
-
Terrassen1
-
HeizungsartFernwärme
-
Wesentlicher EnergieträgerPellet
-
Baujahr2009
-
Zustandgepflegt
-
BauweiseMassiv
-
Verfügbar ab01.11.2025
-
Stellplatz8.000 EUR (Anzahl: 1)
-
ProvisionspflichtigJa
-
Käuferprovision2,99 %
Die Käufer-Courtage beträgt 2,99 % des Kaufpreises inklusive der gesetzlichen Mehrwertsteuer und ist mit der Unterzeichnung eines notariellen Kaufvertrages der Interessenten von der HAMBURG FINANZ® Immobilien LA GmbH & Co. KG verdient und fällig. Wir haben mit dem Verkäufer einen provisionspflichtigen Maklervertrag in gleicher Höhe abgeschlossen. -
Kaufpreis795.000 EUR
Ausstattung / Merkmale
- Außenstellplatz
- Badewanne
- Dusche
- Einbauküche
- Flachdach
- Fliesenboden
- Gäste-WC
- Massivbauweise
- Parkettboden
- Separates WC
- Terrasse
Energieausweis
-
EnergieausweistypVerbrauchsausweis
-
Ausstellungsdatum27.06.2025
-
Gültig bis26.06.2035
-
GebäudeartWohngebäude
-
Baujahr lt. Energieausweis2009
-
PrimärenergieträgerPelletheizung
-
Endenergieverbrauch45,15 kWh/(m²·a)
-
Warmwasser enthaltenja
-
EnergieeffizienzklasseA
Objektbeschreibung
Beschreibung
Stilvolles KfW-40-Reiheneckhaus mit Dachterrasse, Garten & moderner Energieeffizienz sowie einem festen Stellplatz – perfekt für Familien
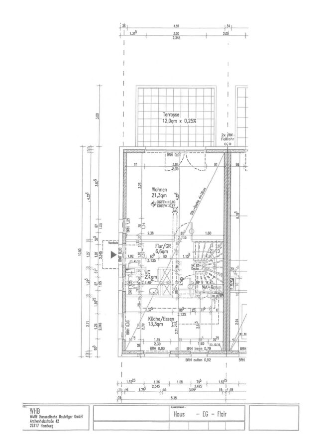
Dieses moderne Reiheneckhaus überzeugt durch klare Architektur, nachhaltige Bauweise und ein helles, familienfreundliches Wohnkonzept. Mit einer großzügigen Wohnfläche von ca. 122,6 m² bietet es auf drei Etagen viel Platz zum Leben, Arbeiten und Wohlfühlen.
Das im Jahr 2009 im energieeffizienten KfW-40-Standard errichtete Haus präsentiert sich in einem gepflegten, zeitgemäßen Zustand und kombiniert durchdachte Raumplanung mit hochwertiger Ausstattung.
Genießen Sie die wohlige Wärme der Fußbodenheizung.
Wohnen mit Komfort und Stil
Im Erdgeschoss erwartet Sie ein lichtdurchfluteter Wohnbereich mit direktem Zugang in den Garten – ideal für gesellige Stunden mit Familie und Freunden. Die Küche mit gemütlichem Erker bietet Platz für einen großen Esstisch und lädt zu gemeinsamen Mahlzeiten ein. Hier befindet sich auch ein Gäste-WC.
Das Obergeschoss beherbergt drei Schlafzimmer sowie ein Familienbad mit Dusche und Fenster. Das Staffelgeschoss bietet einen weiteren, flexibel nutzbaren Raum – perfekt als Elternschlafzimmer, Homeoffice oder Gästezimmer – und verfügt über ein zusätzliches Bad mit Badewanne und Fenster. Von hier aus gelangen Sie auf die sonnige Dachterrasse, die im Sommer zum Entspannen, Sonnen und Genießen einlädt.
Nachhaltig und energieeffizient wohnen
Mit Energieeffizienzklasse A und einer umweltfreundlichen Fernwärmeversorgung auf Basis von Holzpellets profitieren Sie von einem zukunftsorientierten Energiekonzept. Genießen Sie die wohlige Wärme der Fußbodenheizung in allen Etagen. Auf dem Flachdach lassen sich problemlos zwei Balkonkraftwerke installieren, um Ihren eigenen Strom zu erzeugen. Der Stellplatz kann bei Bedarf mit einer Wallbox nachgerüstet werden.
Licht, Luft und Lebensqualität
Dank der idealen Ausrichtung des Hauses genießen Sie den ganzen Tag über eine freundliche, lichtdurchflutete Atmosphäre. Der Süd-West-Garten bietet Raum für Hochbeete, kleine Obstbäume oder entspannte Stunden im Grünen – perfekt für Familien mit Kindern oder Hobbygärtner.
Lage mit Zukunft
Einkaufsmöglichkeiten, Schulen und Kindergärten befinden sich in unmittelbarer Nähe. Eine Bushaltestelle mit fünf Linien sorgt für hervorragende Anbindung an den öffentlichen Nahverkehr – die Innenstadt erreichen Sie schnell und bequem. Der geplante Ausbau der Rodigallee mit moderner, umweltfreundlicher Verkehrsführung und dem Rückbau der Freileitungen steigert die Attraktivität dieser Lage zusätzlich.
⸻
Fazit:
Ein modernes, energieeffizientes Zuhause mit Wohlfühlcharakter – ideal für Familien, die Nachhaltigkeit, Komfort und urbanes Wohnen in perfekter Balance suchen.
Einige Bilder wurden mit Hilfe der KI erstellt, diese sind in der Bildbeschreibung gekennzeichnet.
Ausstattung
- KfW 40 Standard
- traumhafte Dachterrasse
- schöner Garten
- 2 Badezimmer mit Fenster
- Gäste WC mit Fenster
- Einbauküche
- Echtholzparkettfussboden in allen Wohn- und Schlafräumen
- Stellplatz mit Möglichkeit, eine Wall-Box nachzurüsten
- Glasfaseranschluss
Sonstige Informationen
Alle Angaben sind ohne Gewähr und basieren ausschließlich auf den Angaben und Informationen, die uns von unserem Auftraggeber zur Verfügung gestellt wurden. Wir übernehmen keine Gewähr für die Vollständigkeit, Richtigkeit und Aktualität dieser Angaben. Änderungen vorbehalten.
Der Kaufinteressent erklärt, für eigene Rechnungen, das heißt nur für sich selbst und ohne fremden Auftrag zu handeln. Zur Erfüllung
der Verpflichtungen aus dem Geldwäschegesetz ist der Makler verpflichtet, die Identität der Vertragspartner zu überprüfen und zu dokumentieren. Bei Minderjährigen muss auch die Identität der Erziehungsberechtigten überprüft werden.
Lage
Das Reiheneckhaus befindet sich in einem Wohngebiet in dem beliebten Stadtteil Marienthal, der für seine ruhige und familiäre Atmosphäre bekannt ist. In der unmittelbaren Umgebung gibt es zahlreiche Einkaufsmöglichkeiten, Schulen und Parks, die zum Verweilen einladen.
Das Einkaufszentrum Quarrée am Wandsbek Markt ist in wenigen Minuten erreichbar.
Die Anbindung an den öffentlichen Nahverkehr ist optimal, sodass man schnell und bequem in die Innenstadt gelangen kann.
Die Autobahn A 24 ist ebenfalls in wenigen Minuten erreichbar.
Die ungefähre Position der Immobilie auf Google Maps ansehen (Link auf externe Website)




















